If you’re planning to sell your house, you will come across a number of articles detailing the must do’s and must nots when putting a home on the market. The lists can sometimes be overwhelming and require extra expense to ensure you get the best price for your home. But if there is one tip …
If you’re planning to sell your house, you will come across a number of articles detailing the must do’s and must nots when putting a home on the market. The lists can sometimes be overwhelming and require extra expense to ensure you get the best price for your home. But if there is one tip that can guarantee further interest in your home, it’s including a floor plan in the online listing.
Most research for property buying is done online before a foot is set through the front door. While stunning photos of a well styled home on the market are mandatory to stimulate interest (and hopefully an emotional high offer from a buyer – one can dream), including a floor plan adds more value to the listing. Adding a floor plan when selling your home allows a new buyer to consider if the property layout will suit their lifestyle.
The flow of the home and location and distance between rooms can help buyers decide if the house is going to suit them. Is it a property they can start a family in or raise a family in? Having bedrooms next to the master bedroom may be ideal in the early baby years, but will it suit a family of teens at home? A floor plan can help buyers answer these questions. It also ensures the right buyers are directed to your listing.
Floor plans also give buyers a chance to dream of ways to change the layout if the existing floor plan isn’t suitable. Maybe the kitchen is tucked away behind a dining room, but the dividing wall could be removed for an open plan style home? Floor plans help buyers consider if their own plans are viable for a property.
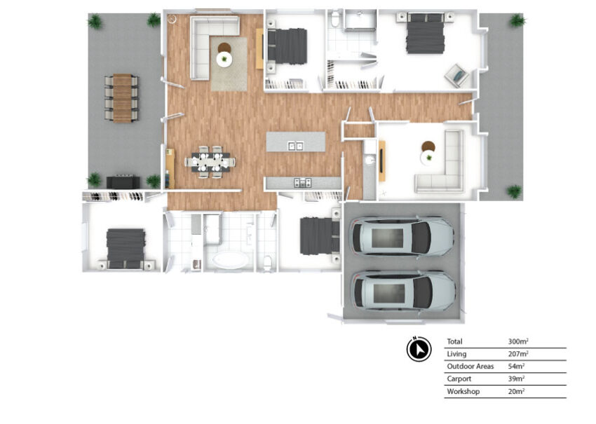
Why you should include a floor plan in your online listing?
A floor plan is a key selling tool for a property listing. It not only draws buyers in, it can attract new buyers looking for a specific layout to suit their needs.
Including it with the photos of the property online will help de-personalise the home, allowing the buyer to imagine how their furniture and style will suit the layout of the home. It helps the buyer to visualize how the property flows before they walk through the front door.
How to include a floor plan
If you built your property, or recently renovated, you may have floor plans ready to give the real estate to include in your property listing.
If have an older home, your real estate can organise a plan drawn for you. Ensure the rooms are named to help buyers navigate what room should or could be what.
If you reflect on your own experience when purchasing a property, you would know how valuable the floor plan was as part of your research.
Be the first to read my stories
Get Inspired by the World of Interior Design
Thank you for subscribing to the newsletter.
Oops. Something went wrong. Please try again later.


Why you should include a floor plan in your online listing?



