Hi! Today I went searching for a bigger style home (last week we did a small home which had great response!). Here's a ranch-style home which would work well on acreage. The garage is down the side of the home. This is quite a big home, but it could be very special and fancy if …
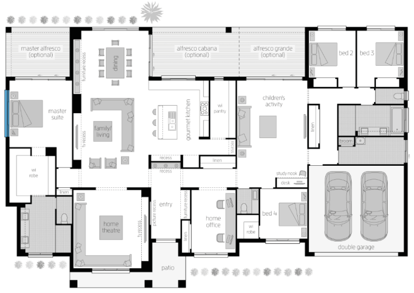
Hi! Today I went searching for a bigger style home (last week we did a small home which had great response!). Here’s a ranch-style home which would work well on acreage. The garage is down the side of the home. This is quite a big home, but it could be very special and fancy if you were building this one. There is a “bonus” second floor if you needed another room on top (it’s over the garage), or you could leave this off if you like the bottom floor layout already.

Here is where I found it.
If you’d love to see more great floor plans then click here. If you have a floor plan you’d like me to look over before you build, please email me or buy my services then scan and email them to me.
I will spend 2 hours looking over your plan and email back a detailed list of suggestions for changes. I can’t guarantee changes will be needed as your plan may already be perfect in my eyes. But for peace of mind I can either list some suggestions, or let you know how jealous I am of your soon-to-be new home.
♥ KC.
Be the first to read my stories
Get Inspired by the World of Interior Design
Thank you for subscribing to the newsletter.
Oops. Something went wrong. Please try again later.







Comments
Cassandra Holm
Ooooh. I like this!