I'm a fan of a H-shaped home. Lots of symmetry and the facade will always look well balanced.. The home boasts 4 bedrooms with a home office that easily become a 5th bedroom, complemented by 3 bathrooms. The home theatre, games room and open-plan dining/living area opens up onto an optional verandah, providing plenty of …


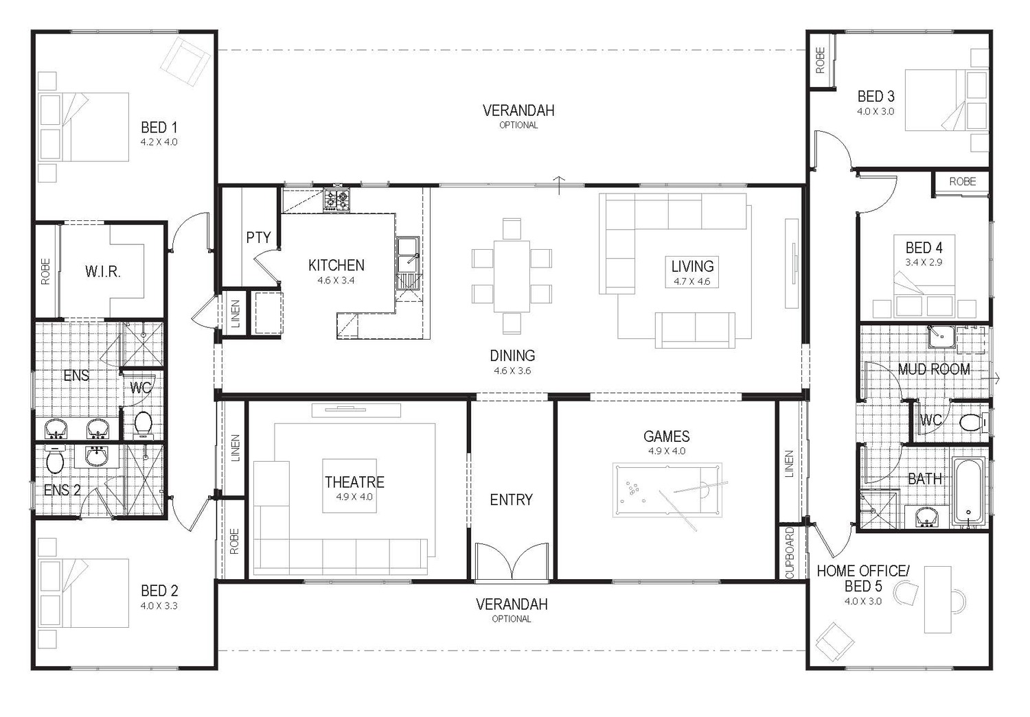
I’m a fan of a H-shaped home. Lots of symmetry and the facade will always look well balanced..
The home boasts 4 bedrooms with a home office that easily become a 5th bedroom, complemented by 3 bathrooms. The home theatre, games room and open-plan dining/living area opens up onto an optional verandah, providing plenty of options for the whole family to relax or entertain. The kitchen is a large, functional working space with plenty of storage including a large pantry. There’s also mudroom access to take off those work boots and muddy shoes before entering your family sanctuary.
I’d be inclined to use Bed 5 as an actual bedroom and turn Bed 2 in to the office space. That way all the kiddies are down one end.
You could put a free-standing garage outside the mud room so you access the the house that way.
Great plan if you want to utilise front views or a northerly aspect.
I found the plan here.
What do you think about this one?
If you’re obsessed with house designs like I am then I have a stack more over here.
Plus I can give you a hand with your own floor plans in my services list over here.
Happy Friday ♥ KC.
Be the first to read my stories
Get Inspired by the World of Interior Design
Thank you for subscribing to the newsletter.
Oops. Something went wrong. Please try again later.







Comments
Megan Reading
Love this one, and with you re switching the office…especially running a farm the office is a well used space, although could also have an external door would help with farming partnerships everyone can enter the office without having to go through the whole house
Karen Inall
I pinned this one the other day
b
Where is the laundry?
Katrina
the mud room is the laundry 🙂
Avery Benken
I know this is an old post, and you may not see this. That being said, I will still ask.
Where is your utility room for water heater and HVAC. As an MEP designer, this should always be taken into consideration when designing a beautiful home like this.
In the mid west where I live, we would have a large closet, a basement, or an entire mechanical room.
If you plan on attic placement, I find elderly people (aka – people with money) don’t like it because they struggle to change air filters and adjust the water heaters.
Katrina
HI, this is not my plan – I only share them. We’re in Australia and HWS and HVAC sit external to house under an eave on a concrete slab. We don’t build dedicated utility rooms. The plan is owned by building companmy https://www.trhomes.com.au/home_designs/the-grange/