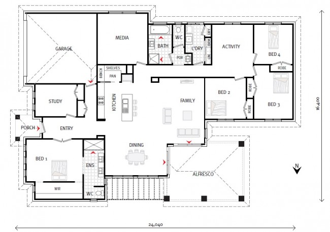
Following on from my post last week about a new series called Floor Plan Friday, here's the latest edition! I found this one from GJ Gardner Homes.... what do you think? I like the activity room around near the bedrooms. I like how you walk in from the garage. I love the wardrobe behind the …

Following on from my post last week about a new series called Floor Plan Friday, here’s the latest edition! I found this one from GJ Gardner Homes…. what do you think? I like the activity room around near the bedrooms. I like how you walk in from the garage. I love the wardrobe behind the bed. I so wanted to do this! But I didn’t have room. Bummer! I’m not sure about the media room and it’s position, however, it could work because it’s away from a lot of the rooms so the tv (or the xbox!) could be up loud and it wouldn’t interfere.
What do you think about this one? Got any of your favourites you’d like to share? Pop them in the comments below, or add them to Design Tribe over here.
KC.
Be the first to read my stories
Get Inspired by the World of Interior Design
Thank you for subscribing to the newsletter.
Oops. Something went wrong. Please try again later.






Comments
Saffybean
I love it! I’d probably have a play with the media room and have a massive butlers pantry and extend the kitchen as well.
I love floor plans, especially the modern ones. I live in a teeny tiny terrace close to Sydney CBD so I often google and dream. I’m loving floor plan Friday 🙂
Karen
I love looking at floor plans too, and dreaming of living in lovely big modern houses with great big swimming pools!! We actually live in a GJ Gardner home, its one from the mid-80’s, and has everything we need, so really can’t complain. Katrina, how about showing us your new house flloor plan one day? Would love to see how you designed your new home.
Katrina Chambers
Maybe one day Karen! X
Courtney
I would love it, one day!! Room for all the (kid) junk tucked away and the husbands ugly but admittedly comfortable recliners in a ‘media’ room so I could have a proper nice living room with good pretty stuff!
Not to mention the awesome shelves and bench in the pantry to hide the messy ‘stuff’ and love the separate study off the garage.
Perfect!
What GJ plan is this one?? Might just have to put it in the future home folder…=)
Katrina Chambers
It’s this one http://www.gjgardner.com.au/offices/house-designs/ferrara-324-12820.aspx
🙂
Ben Everingham
Hi Courtney.
Feel free to take a look at some of our other designs at:
http://www.gjgardner.com.au/offices/albury-2324/house-designs.aspx