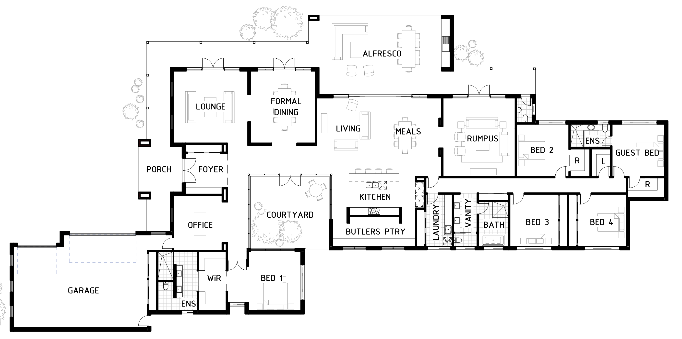
Hi there! I know this plan is a little over the top today but in my search for a floor plan I feel like I've seen just about every plan known to man on the internet. I wanted something different today and while I know this house needs a hefty budget we can all dream can't …

















