Hi there! Each Sunday I pick a piece for real estate which is currently for sale to show you. I spend a really long time trawling through real estate pages looking for a home you might fall in love with. This home today is a masterpiece. The facade made me click through to the rest …
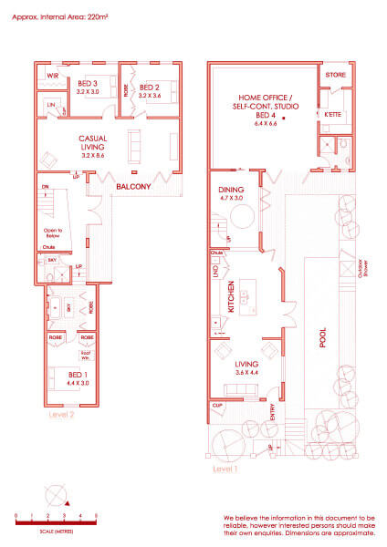
Hi there! Each Sunday I pick a piece for real estate which is currently for sale to show you. I spend a really long time trawling through real estate pages looking for a home you might fall in love with. This home today is a masterpiece. The facade made me click through to the rest of the photos and I wasn’t disappointed! The 4 bedroom, 2 bathroom family home is for sale in Rozelle, Sydney NSW.
An architect-redesigned family home, this classical house is packed full of smart design ideas. With in/outdoor flow to a poolside escape, it’s the ultimate entertainer just 10 mins from the CBD. – Agent.
Can you see the pool off the right of the home? See all the photos below…


















What an impressive use of space, materials and light. What do you think of this one? Check the full listing here, or visit more of my real estate posts.
Happy Sunday! ♥ KC.
Be the first to read my stories
Get Inspired by the World of Interior Design
Thank you for subscribing to the newsletter.
Oops. Something went wrong. Please try again later.







Comments
Lavues
Love the interior design, it looked so comfortable too! Definitely loved that pool too!
Graysonau
Thanks for sharing a nice interior design great architectural