I didn't get around to posting these photos last week, so here they are! This was the Grand Final Decider on House Rules where the couples renovated Chelsea and Koa's house. NSW couple and childhood sweethearts Chelsea and her husband Wayde had applied as contestants in this season of House Rules – dreaming of transforming their …
I didn’t get around to posting these photos last week, so here they are! This was the Grand Final Decider on House Rules where the couples renovated Chelsea and Koa’s house. NSW couple and childhood sweethearts Chelsea and her husband Wayde had applied as contestants in this season of House Rules – dreaming of transforming their tiny cottage in Wollongong into their forever home. Wayde tragically died in a fishing accident shortly after submitting their House Rules application. It was a real tear jerker and absolutely heartbreaking.
I am absolutely rapt for Chelsea and her little girl Koa – they got a brand new renovated home stuffed (wink wink) full of furniture. Scroll down for all of the photos >>





























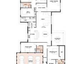
Design wise overall the home wasn’t that bad. The bones were pretty good. Strip it back and remove half of the stuff and it would have been much better. The outside area is really hurting my eyes. But considering the good it’s done for Chelsea, then I think it’s all A-OK with me.
What did you think??
You can see the previous renos here and meet the contestants here.
♥ KC.
Be the first to read my stories
Get Inspired by the World of Interior Design
Thank you for subscribing to the newsletter.
Oops. Something went wrong. Please try again later.







Comments
Lisa
What a tragic story! I’m so glad that the team were able to do this for Chelsea.
In regards to the reno, the guest bedroom was painful to look at. I felt overwhelmed by the amount of stuff they had jammed in that room. It was like they wanted so badly to give her everything they could, that they literally gave her everything they could. Bless, Ciara and Dave. They were my favourite, but when they get things wrong, it’s a disaster.
The outdoor area was an assault to the eyeballs. I’m still trying to recover! I thought Mel and Dave were truly gone after that atrocity. To be fair, it’s not their forte and they were open about that.
But respect to all the contestants. I’d never last under that type of pressure!