Hi there! Today I have this large family home with scullery, activity, study and home theatre... It's a pretty standard layout and would fit a regular residential house block. The kids' bedrooms are clustered together on one side away from the master. If you don't like the master on the front or the back, then this …

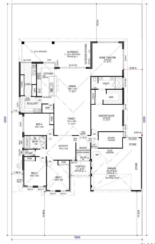
Hi there! Today I have this large family home with scullery, activity, study and home theatre… It’s a pretty standard layout and would fit a regular residential house block. The kids’ bedrooms are clustered together on one side away from the master. If you don’t like the master on the front or the back, then this one is good as it’s tucked behind the garage. It has a huge open plan through the middle and I’d love to see raked ceilings through there. I am in love with the scullery and laundry. What’s a larder though? Like a mud-room shelving??
The home theatre is great on the back because you can close that off. It’s also got a perfect outdoor kitchen area.
I found the plan in a chat forum over here. I wonder if the person ended up building it, or made changes? What changes would you make?
What do you think of this one today?
If you’d love to see more great floor plans then click here. If you have a floor plan you’d like me to look over before you build, you can buy my services then email them to me.
I will spend 2 hours looking over your plan and email back a detailed list of suggestions for changes (includes colour ideas). I can’t guarantee changes will be needed as your plan may already be perfect in my eyes. But for peace of mind I can either list some suggestions or let you know how jealous I am of your soon-to-be new home. ????
♥ KC.
Be the first to read my stories
Get Inspired by the World of Interior Design
Thank you for subscribing to the newsletter.
Oops. Something went wrong. Please try again later.






Comments
Fleur Horsley
This is a modified Le Mans (I think) from Commodore Homes in WA. I know some one who built this home and it looks amazing! it’s an ideal family home!
Katrina Chambers
Yeah I’ve been looking hard at it and I like! A few things I’d change, but it’s pretty good!
Fleur Horsley
It’s one of our fav plans – with a few changes! Wouldn’t have worked on our block though.
Kim Saunders
I recognised the plan straightaway as that too Fleur! The floor plan is perfect and I loved following Leanne’s build progress online!
Dains
Hi Kim
Just wondering if it is a blog you are talking about in regards to following Leanne’s Build progress online – we love this plan and are inthe process of drawing it up (with a few changes) but would love to see it in the ‘flesh’ if thats at all possible!
Thanks
Kirby Cotterill Schofield
All I’d change is the kids activity area is a bedroom so the kids can have a room each…… hubby even liked this one when i showed him on pinterest the other day
Linda Schraven
I like the concept of this house but for me I would omit the garages and bring master suite forward after the ensuite put in a powder room then the study have the garages separate as I’m looking at building on acreage few tweaks in the bathroom layout but I do like
Priya McDonald
Very similar to one of the display homes here also. Great floor plan, I really liked it. Like that the main bedroom is not at the front door as every house I’ve lived in has always had main at front door which means I’m fussy about bed being made and room being tidy.
Caroline
Nope – I do not like it at all – no allowances for natural light. It would also be annoying trying to place furniture in that main family room.
Caroline
BTW that was a Gold inclusion because I followed the blog link and loved someone describing a builder as a bit “fur coat no knickers” <— that's my new favourite saying of the day.
Caroline
And (whilst I am hogging the comments here) I’d have to move the sink to the window. But I realize not everyone loathes sinks on islands like I do (and I shouldn’t b e so critical as at this stage my kitchen is truly revolting and anything even resembling an island would be a complete godsend).
Kate
Best yet! I love this one, it’s very similar to an ex-display home here that I have long coveted! 🙂