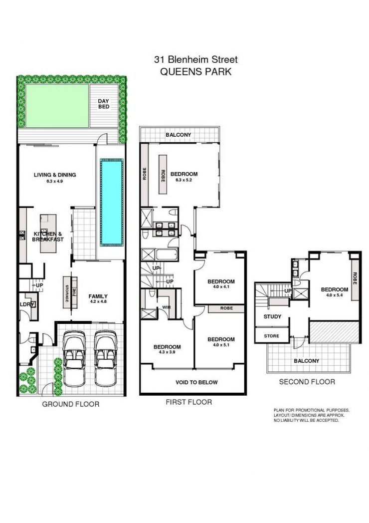
Hi there! I came across this very cool home for sale in Queens Park, Sydney, NSW. It was once an old smash repair building (still has original signage on the front). The vertical garden and pool area is amazing! "Once housing G.F.H Smash Repairs, this substantial warehouse-style building has undergone a breathtaking architecturally designed transformation …
Hi there! I came across this very cool home for sale in Queens Park, Sydney, NSW. It was once an old smash repair building (still has original signage on the front). The vertical garden and pool area is amazing!
“Once housing G.F.H Smash Repairs, this substantial warehouse-style building has undergone a breathtaking architecturally designed transformation to create this absolutely unique and impressive modern family home. Spanning three vast levels, it’s been created to take full advantage of northerly sun, with superb low-maintenance alfresco entertaining areas, generous bedrooms and a luxurious whole-floor master retreat. Quite unlike anything else on the market, it’s tucked away in a serene one-way street just a brief walk to both Queens Park and Bondi Junction.” – Agent.

What do you think? Pretty fabulous reno if you ask me!
Pop over here to read/see more of the home. If you love looking at real estate then I have heaps more Stunning Sunday posts over here.
Have a wonderful day! ♥ KC.
Be the first to read my stories
Get Inspired by the World of Interior Design
Thank you for subscribing to the newsletter.
Oops. Something went wrong. Please try again later.







Comments
WAM Home Decor
Stunning building and pool! Interior wise… we love to see chairs and beds piled high with large cosy cushions! More cushions and pillows helps keep a space inviting and, it is working with this property! http://www.wamhomedecor.com.au