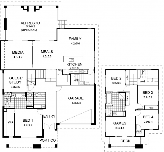
I started looking for a plan with a butler's pantry, but in the process I saw this one - a modern split level home. I love the fact that the kids' bedrooms would be all upstairs with their own games room. This is quite a large home. The stair area would be very cool with …

I started looking for a plan with a butler’s pantry, but in the process I saw this one – a modern split level home. I love the fact that the kids’ bedrooms would be all upstairs with their own games room. This is quite a large home. The stair area would be very cool with a void and you could really make that staircase a feature… (click on the plan to see it larger)
The downstairs level has lots of space too with a study and media room. I found the plan here and also check out the variety of facades. Click here for more floor plans too!
Be the first to read my stories
Get Inspired by the World of Interior Design
Thank you for subscribing to the newsletter.
Oops. Something went wrong. Please try again later.
Tags:Floor plan Friday








Comments
Nikki Duck
Hope u have a small car lol
Monique van Tulder
Oh I love a Butlers Pantry. I put a small one in last year, brilliant for keeping it all behind closed doors…entertaining heaven…and the blissful storage! X
Elijah Brook
Would you mind if I used this floor plan and design for one of my classes?