Hi! Thanks for stopping by today. I have this split level 4 bedroom + study plan to show you. It's always tricky to work out just from the plan where the fall would be on a split level home. But the facade is below so you can see the block of land would cut across …
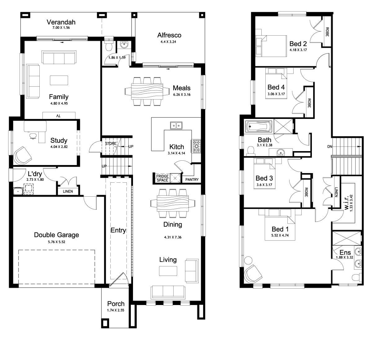
Hi! Thanks for stopping by today. I have this split level 4 bedroom + study plan to show you. It’s always tricky to work out just from the plan where the fall would be on a split level home. But the facade is below so you can see the block of land would cut across (from one side to the other). The majority of the living is on the ground floor with the bedrooms on top. The ground floor is split a little bit too. The living/dining/kitchen would be slightly lower than the other side (study/laundry/family). So you can see the solid wall separating the family and meals would most likely need to stay there as it’s load bearing. Correct me if I am wrong though!
I’m not keen on some of the layout inside, but it could be easily fixed. However this is a good plan for you if you have that awkward sloping block. I don’t like the toilet off the meals, and you could open the meals/kitchen/dining area up much better.


Overall, the plan is great if you are looking for a split level home. I quite like this facade too! I found the plan here.
Check out all of my other plans here too.
Happy Friday ♥ KC.
Be the first to read my stories
Get Inspired by the World of Interior Design
Thank you for subscribing to the newsletter.
Oops. Something went wrong. Please try again later.







Comments
Christine Taylor
Our home is split level (over 3 levels), we have a room on lower floor, then three bedroom and all living/bathroom on main level, then the entire top half is lounge room and main bedroom/ensuite…. We really love our floor plan ????
Kirsty McCann Leckie
Angus Leckie
Narelle Howell
Interesting layout. I know someone with a similar split level. I think a galley kitchen would work better to open up both ends. I agree with you Katrina about the powder room off the meals area. I’d open up between meals and lounge with big sliders or similar,