I found this plan in my travels around the internet. What do you think from first glance (click on the image to get a bigger view)? Not for everyone, but I was intrigued and sat staring at it for a while. Clearly it doesn't have enough bedrooms for a family (or a 2nd living room!), …
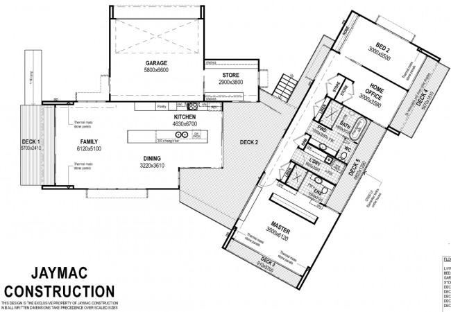
I found this plan in my travels around the internet. What do you think from first glance (click on the image to get a bigger view)? Not for everyone, but I was intrigued and sat staring at it for a while. Clearly it doesn’t have enough bedrooms for a family (or a 2nd living room!), but I was wondering what you thought about the breezeway? I love the master bedroom and it’s layout. If you had a view this would be great. I also love the proportion of the kitchen/family/dining.
I did a bit of research and found the home’s facade when it was built. I’m not sure I love it, but it certainly did make a statement…

Here‘s some more pictures of the home.
What’s your take on this plan? What would you add/change?
Be the first to read my stories
Get Inspired by the World of Interior Design
Thank you for subscribing to the newsletter.
Oops. Something went wrong. Please try again later.
Tags:Floor plan Friday







Comments
Jo Matheson
Am I blind or is there no walk in rode or robe at all for that matter in the master suite? I love the breeze way idea and something we have considered for our own home (when we build)…. I see it now its behind the false wall … right?
Katrina Chambers
Yes behind the false wall 🙂
Ashlea
I just clicked the link and saw that its at The Eco Village at Currumbin Valley – not far from me! If you look up more info on the Currumbin Valley Eco Village it may give you a little more context about why this home doesn’t have perhaps all the bells and whistles and has most likely been built to incorporate the surrounds, light and breeze. The estate is amazing – no fences, communal vege gardens, kangaroos roaming and chook pens on front lawns. Not everyones cup of tea but interesting to see the homes people choose and the village lifestyle that comes with it! Thanks for sharing K! x
Karen
Althou it may sound wonderful having a breezeway here are a few of my thoughts on it: You’d need to live in a very safe place, as I personally wouldn’t feel happy having young children asleep in a part of the house that wasn’t connected to the part I was in, ie if you’re up late watching TV and they are asleep across a breezeway/patio in their bedroom I’d want all the doors and windows locked to where they were. You’d also want your whole section secure because if your toddler woke and came looking for you in the kitchen or lounge what’s to stop them wandering off down the steps of the breezeway and wandering away somewhere cause their bedrooms not actually even in the house! If you were in the lounge would your be aware if there was an intruder in the other part of the house? Also you’d want to live in a dry hot place, cause imagine in the winter having a lovely hot shower then going across a breezeway in a cold wet wind to make a cuppa tea. Or if you’re like me and often wake at 3am and want a cuppa tea you have to go outside to get one – it would be like permanently camping! You’d also need to carry keys at all times of the day and night to get in and out of half your house when you were going to the other half.
Sounds nice if you live in the tropics and have palms, canes, tropical garden all drooping over the house and breezeway I guess, and no rain, wind or cold could get in there. Each to their own I guess but personally I prefer my home to be all under the one roof!
Julie
I just discovered your Floor Plan Friday blog and I love it! I’ve been going through all your past blogs, we have similar taste and its been so nice to find a like mind around style, and I love the thought process you put into these. Thank you!