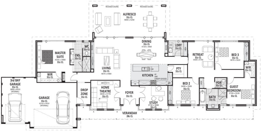
Thanks for popping in today! This is a very good acreage-style floor plan for a big family who needs plenty of space. I love the drop zone - you could put some cabinetry in there for storage. The master bedroom is the perfect layout. I like the big sliding external door and the ensuite is …

Thanks for popping in today!
This is a very good acreage-style floor plan for a big family who needs plenty of space.
I love the drop zone – you could put some cabinetry in there for storage.
The master bedroom is the perfect layout. I like the big sliding external door and the ensuite is just the right size.
I really like this plan. I might save it for my ‘one day’.
What do you think about this one?
The original source came from here.
Be the first to read my stories
Get Inspired by the World of Interior Design
Thank you for subscribing to the newsletter.
Oops. Something went wrong. Please try again later.
Tags:Floor plan Friday







Comments
Alison
Love, love, love this. A few small tweaks and it would be perfect for me.
Catherine
I really like this one. I’d tweak it a bit too. I would need a bath in the ensuite. I love my bath time.
Also, if this was on acreage and money was no object, I’d have ensuites for everyone.